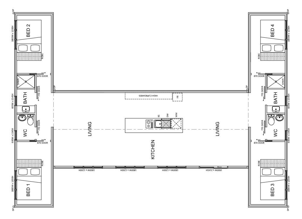
4 bedroom
4 bed / 2 bath / 960 sq. foot / $314,800*
The largest model we offer. Four bedrooms, two bathrooms and two seperate toilets alongside a spacious open plan living room and kitchen. The living room can also be doubled in size to a huge 60 sq meters (approx) – a great option for the large family or those that want additional space to invite friends over.
Add a deck and container pool you will have the ultimate holiday house!
*Starting at $314,800 plus GST, Site Costs & Council Documentation






